Play Video

Prodej novostavby moderního bungalovu

exkluzivně u FKR

Jaký bude váš nový domov

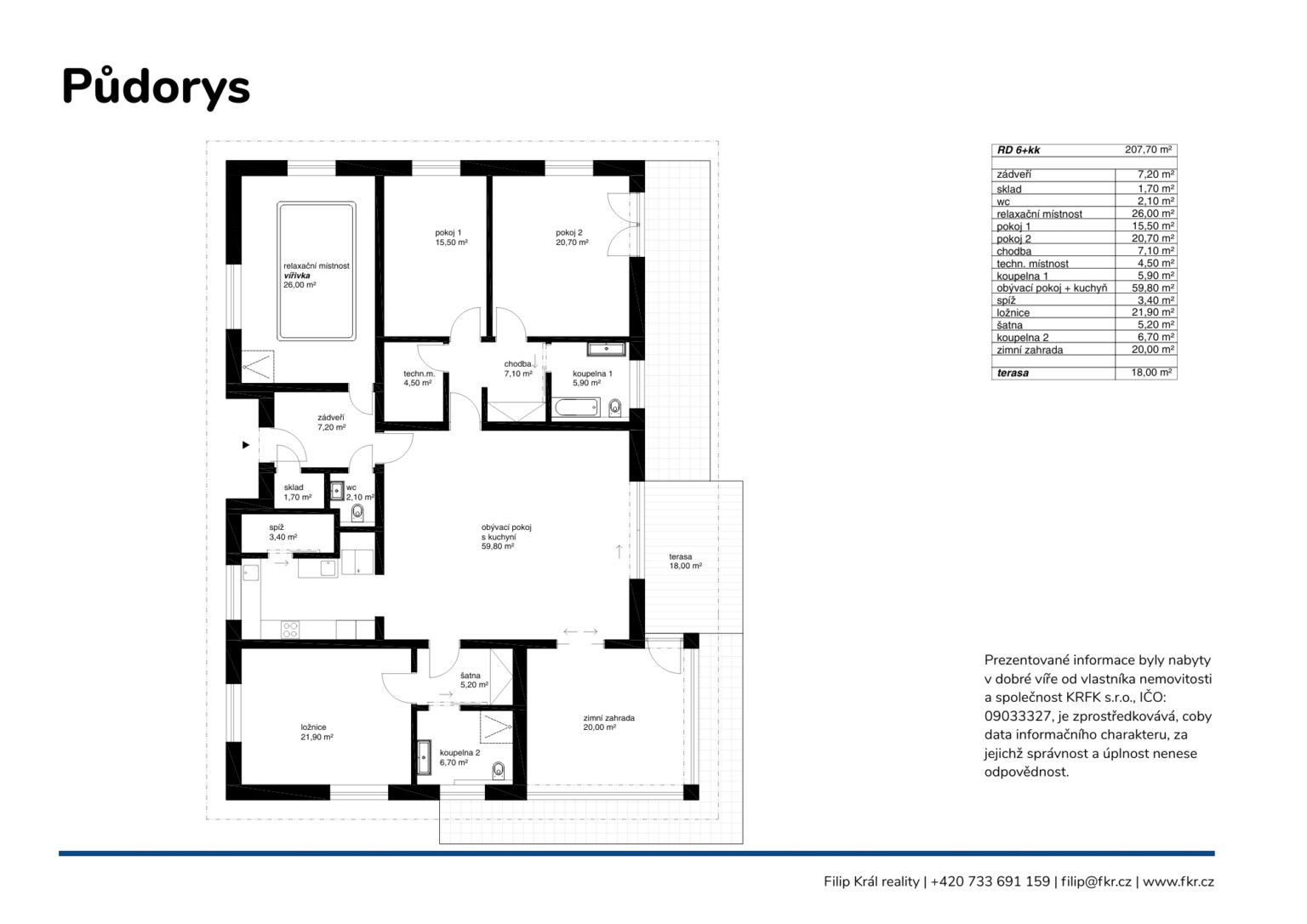
Promyšlená dispozice (zastavěná plocha 254 m² )
Moderní technologie, wellness, spa a zimní zahrada
Velká zahrada s možností seberealizace
Nadstandardní parkovací možnosti
Snadná dostupnost do Karlových Varů
Golfové prostředí

Představení nemovitosti

Moderní bungalov, to je bydlení se spoustou benefitů. Nemovitost byla navržena s důrazem na pohodlí a prostor, a díky tomu si zde můžete dopřát klid, soukromí i místo pro společné chvíle. K dispozici je prostorná zahrada s terasou a zimní zahradou, wellness a moderní technologie, které zpříjemňují každodenní život. Z domu se otevírají částečné výhledy na místní 9 jamkové golfové hřiště a pouze několik minuty jízdy vás dělí od lázeňského města Karlovy Vary a jeho letiště.

 


 

Virtuální prohlídka

Technické podklady

Ke stažení
Půdorys

Lokalita

Nejzajímavější místa v lokalitě

Obec Kolová, která je jen pár minut jízdy od Karlových Varů je vyhledávaná pro svou příjemnou atmosféru. V okolí najdete široké možnosti pro aktivní i odpočinkový život – od golfového hřiště přes cyklostezky a turistické trasy až po lázeňské parky, wellness centra a tradiční kavárny v nedalekých Karlových Varech.

Cena nemovitosti

15 987 600 Kč

cena zahrnuje provizi, včetně právních a realitních služeb

Plánujete prodat svou nemovitost?

Rád vám představím možnosti prezentace Vaší nemovitosti.

Reference

S námi bezpečně k vytouženému cíli