Příjemný byt 1+1 v blízkosti metra Dejvická – REZERVOVÁNO

exkluzivně u FKR

Jaký bude váš nový domov

Revitalizovaná budova.
Výhled do klidné zahrady.
Garance vhodně uložených prostředků do nemovitosti se snadným pronájmem.
Světlý interiér, vysoké stropy.
Ihned připravené k bydlení bez nutnosti rekonstrukce.
Snadná dostupnost do středu města (metro A).

Představení nemovitosti

Bydlet v Dejvicích znamená mít po ruce jak živé centrum města, tak klid zelených ulic. V Koulově ulici, v domě z 30. let po revitalizaci, na vás čeká příležitost vlastnit nemovitost, která poskytuje praktičnost a pohodlí, vysoké stropy, parketové podlahy a balkon do zahrady. To vše dohromady vytváří prostředí, kde se snadno budete cítit jako doma. Ať už hledáte zázemí pro pohodlný městský život, nebo bezpečné místo pro investici v žádané lokalitě, tahle adresa vám otevře dveře do jedné z nejvyhledávanějších částí Prahy.

 


 

Vzdušný pokoj vyniká vysokými stropy a velkými okny orientovanými do klidné zahrady. Díky své velikosti umožňuje rozdělení na odpočinkovou i pracovní zónu.

Parketová podlaha dodává prostoru eleganci a útulnost. Interiér zároveň podtrhují zachované původní prvky, které v kombinaci s moderní renovací vytvářejí harmonický a nadčasový celek.

Světlá kuchyně disponuje i místem pro jídelní kout. Praktickou výhodou je navazující komora s oknem, ideální pro uskladnění potravin či kuchyňských potřeb. Z kuchyně je přímý vstup na balkón.

Balkón orientovaný do zeleně poskytuje klidné místo k odpočinku. Ideální místo pro ranní kávu nebo večerní posezení po náročném dni.

Stylové detaily zdůrazňují světlost a příjemnou atmosféru bytu, který je obratem připravený nabídnout domov a příjemné bydlení.

Vstupní hala s vestavěnými úložnými skříněmi nabízí dostatek místa pro odkládání věcí. Působí čistě a prakticky, což oceníte při každodenním užívání.

Koupelna v jednoduché barevné kombinaci prošla rekonstrukcí a nabízí vše potřebné, benefitem je samostatná toaleta.

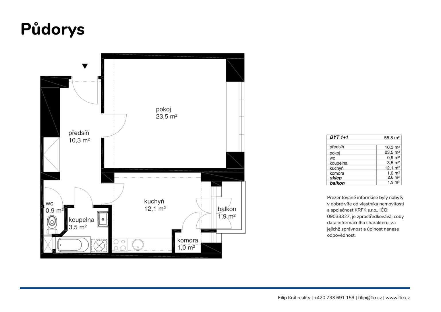
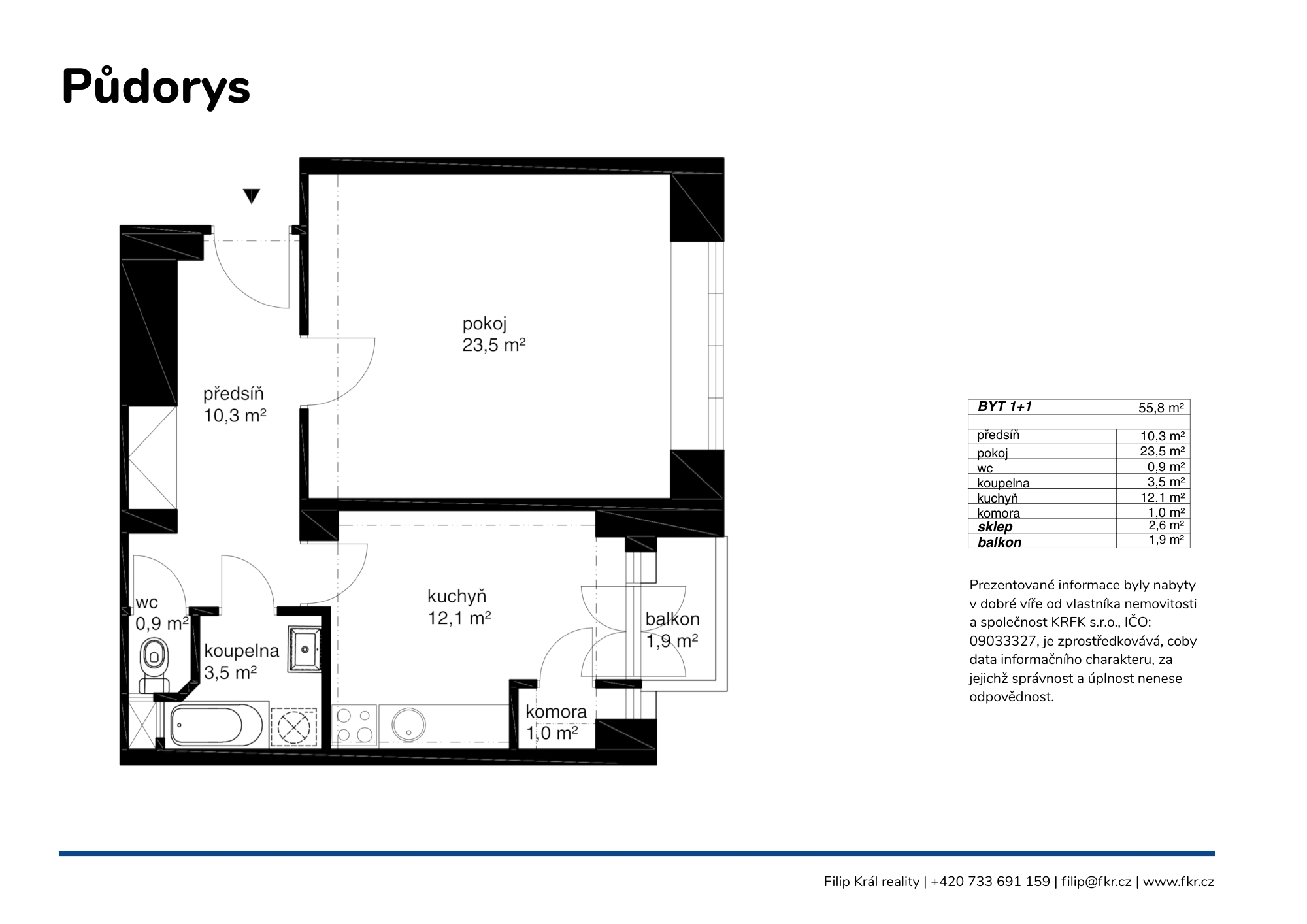
K jednotce náleží sklep (2,7 m²), ideální pro uložení sezónních věcí nebo sportovního vybavení. Bezpečné a snadno přístupné místo v suterénu domu.

Vstup do domu a čisté, udržované schodiště, charakteristické pro stavby z 30. let, podtrhuje pečlivě provedenou revitalizaci celé budovy.

Společná zahrada ve vnitrobloku poskytuje obyvatelům možnost relaxace i soukromí. Jedná se o klidné a příjemné prostředí v centru Dejvic.

Vnitroblok se spoustou zeleně nabízí cenný benefit bydlení v centru Prahy.

Virtuální prohlídka

Technické podklady

Ke stažení
Půdorys

Lokalita

Nejzajímavější místa v lokalitě

Koulova ulice nabízí bydlení v klidné části vyhledávaných Dejvic, jen pár kroků od metra Dejvická, a vynikající dopravní dostupnosti do centra města. V okolí najdete kompletní občanskou vybavenost – obchody, kavárny, školy, univerzity i lékaře. Jen pár minut odtud se nachází oblíbené parky Stromovka a Divoká Šárka, které nabízejí ideální místo k odpočinku i sportu. Dejvice jsou navíc známé svou příjemnou atmosférou a výborným spojením s mezinárodním letištěm i diplomatickou čtvrtí.

Cena nemovitosti

9 699 887 Kč

cena zahrnuje provizi, včetně právních a realitních služeb

Plánujete prodat svou nemovitost?

Rád vám představím možnosti prezentace Vaší nemovitosti.

Reference

S námi bezpečně k vytouženému cíli