Play Video

Rodinný dům 5kk v Dolních Jirčanech

exkluzivně u FKR

Jaký bude váš nový domov

PENB A dle aktuální normy
Praktická dispozice a spousta úložného prostoru na půdě
Krásná udržovaná zahrada od architekta
Velkorysé možnosti relaxace (vířivka, bazén)
Dvě parkovací místa + Wallbox
Perfektní stav nemovitosti

Představení nemovitosti

Objevte místo, kde se pečlivě tvořená zákoutí setkávají s klidem, který vás okamžitě odpojí od každodenního shonu. Každý krok zahradou odhaluje novou scenérii a společně s moderně zrekonstruovaným domem vytváří harmonické prostředí pro život. Dům v Dolních Jirčanech nabízí dokonalou rovnováhu mezi přirozeným klidem a snadnou dostupností Prahy.
Rodinný dům po rozsáhlé modernizaci je připraven splnit vysoké nároky současného bydlení – od promyšlené dispozice s neprůchozími pokoji přes prémiovou kuchyni až po technologickou výbavu v energetické třídě A. Zahrada s bazénem, pergolou, vířivkou i samostatným Tiny Housem vytváří prostor, který přirozeně rozšiřuje komfort domu a nabízí možnosti pro práci, odpočinek i rodinná dobrodružství.

 


 

Samostatná stavba s promyšlenou dispozicí a krásnou zahradou nabízí pohodlný příjezd přímo z veřejné komunikace. V přední části pozemku se nachází parkování pro dva vozy, doplněné o Wallbox napojený na fotovoltaiku, což zajišťuje moderní a úsporný provoz.

Pohled na zahradu odhaluje jednotlivé zóny promyšleně navrženého venkovního prostoru. Hlavní vstup vede z terasy navazující na obytnou část domu, odkud se zahrada otevírá do několika dokonale sladěných sekcí. Najdeme zde prostornou pergolu s posezením situovanou u bazénu se slanou vodou, která je ideální pro letní dny. Rodiny ocení dětské herní prvky, zatímco samostatně stojící Tiny house nabízí klidné místo pro práci, hosty nebo odpočinek. Relaxační část doplňuje vířivka a nechybí ani prostor vyhrazený pro vlastní pěstování. Dominantou venkovního zázemí je velké kruhové ohniště, u kterého se pravidelně schází celá rodina i přátelé.

Terasa navazující na obytnou část domu je přístupná také z ložnice a svou velikostí umožňuje pohodlné využití jak pro pravidelné stolování, tak pro večerní posezení se západem sluncem. Na ni navazuje venkovní pergola, která poskytuje nejen příjemné zastíněné posezení i pro početnější rodinu, ale zároveň nabízí praktický prostor pro uskladnění venkovního vybavení.

Detailní informace o zahradě včetně kompletního projektu od architekta vám rádi poskytneme na vyžádání. Venkovní zázemí je natolik rozmanité, že nadchne nejmenší děti i starší potomky. Každý zde najde svůj vlastní prostor pro hru, odpočinek nebo trávení společného času.

Pohodlí a bezpečí domu je zajištěno díky dálkovému přístupu k technologiím, který umožňuje plnou kontrolu nad nemovitostí odkudkoli. Předokenní žaluzie na všech oknech pomáhají udržet příjemné klima i v horkých dnech. Dům je vybaven alarmem s možností kódování jednotlivých zón a doplněn o kamerový systém.

Dispoziční uspořádání domu nabízí jednoduché, avšak velmi účelné řešení, doplněné o možnost využití prostorného podkroví. Vstupní část je vybavena dvojicí velkých šatních skříní a pro snadnou údržbu je zde položena velkoformátová dlažba. Interiér se nese v jednotné a harmonické barevné paletě.

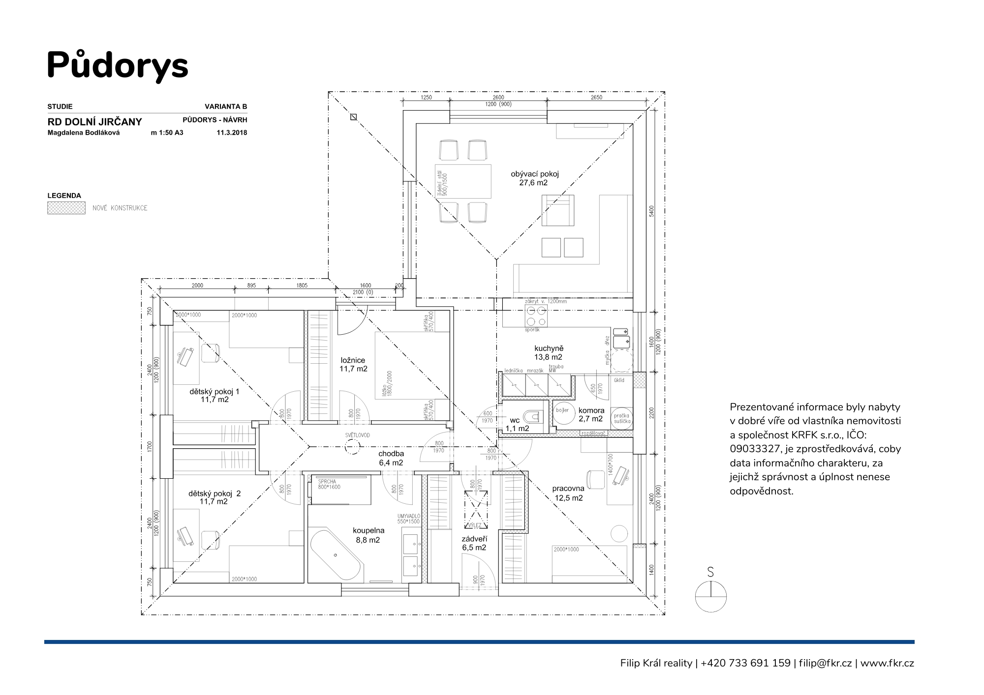
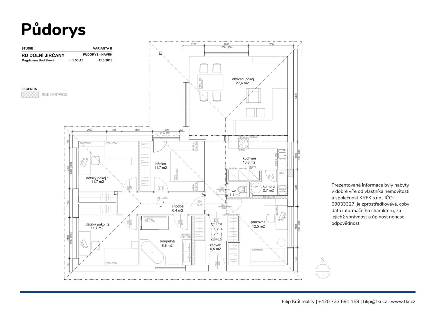
Navazující elková chodba propojuje hlavní obytnou část domu se zónou určenou pro odpočinek a soukromí. Detailní rozměry jednotlivých místností jsou přehledně uvedeny v přiloženém půdorysu. K celkovému komfortu přispívá podlahové vytápění s možností nastavení jednotlivých zón. Pro zajištění většího klidu lze chodbu oddělit od hlavní části domu posuvnými dveřmi.

Prostorná moderní kuchyně s velkorysou integrovanou komorou nadchne jak milovníky vaření, tak i ty, kteří ocení praktičnost a promyšlené úložné prostory. Hlavní kuchyňská část je orientována směrem do obývacího pokoje a dále nabízí příjemný průhled do zahrady. Trendy barevná koncepce plynule navazuje na design hlavní obytné místnosti a vytváří vizuálně jednotný celek.

Obývací část nabízí dostatek prostoru i při využití rozměrnějšího posezení. Příjemným benefitem je také samostatná zóna s jídelním stolem. V roce 2022 prošel interiér i technologie kompletním refreshem, díky čemuž se dům aktuálně řadí do energetické náročnosti třídy A.

Díky velkému HS portálu je vstup na terasu maximálně pohodlný. Okna jsou vybavena sítěmi proti hmyzu a v horkých dnech lze terasu částečně zastínit pomocí posuvné markýzy. Samozřejmostí je také venkovní osvětlení zahrady a terasy, která je pro dlouhodobou životnost vyrobena z WPC prken (Wood Plastic Composite).

Samostatný Tiny house je plně soběstačnou jednotkou, která poskytuje výborné zázemí jak pro domácí kancelář, tak pro odrostlejší děti či hosty. Pro zájemce s podnikatelským duchem je navíc možné převzít i funkční profil na Airbnb, který je součástí aktuálního provozu, generujícího statisícové příjmy.

Hostům můžete jako milý bonus a poděkování za návštěvu předat i vlastní vypěstované fíky.

Při rekonstrukci domu se myslelo na všechny klíčové aspekty – od moderních technologií, přes dostatek úložných prostor až po celkové uspořádání, které zajišťuje příjemný každodenní dojem z užívání domu.

Vlastní pracovna nabízí soukromí a klid na práci. Zároveň ji lze snadno využít jako pokoj pro hosty, případně po drobné úpravě může sloužit jako třetí dětský pokoj nebo samostatná ložnice.

Dětské pokoje nabízejí dostatek denního světla i úložných prostor. Velikostně jsou totožné, což elegantně řeší případné spory o to, kdo bude mít větší pokoj.

Díky koncepci smíšené stavby lze pokoje v případě potřeby jednoduše propojit a vytvořit tak jednu velkou místnost, která nabídne maximální flexibilitu uspořádání.

Hlavní ložnice disponuje velkou stěnou s úložnými prostory a přímým vstupem na terasu. Vestavná skříň svou velikostí nabídne dostatek úložného prostoru. Průchod na terasu umožňuje přirozené propojení se zahradou a přístup do relaxační zóny s bazénem a vířivkou.

Součástí zahrady je prostorná vířivka s kapacitou až pro 5 osob, umístěná na zpevněné části s maximálním soukromím, které zajišťuje vzrostlý plot a dřevěná zástěna směrem do zahrady. Vířivka nabízí intuitivní ovládání v češtině, dálkový přístup, barevné podsvícení a především více než dostatek prostoru pro komfortní relaxaci.

Tiny house je navržen jako multifunkční prostor. Je ideální pro domácí kancelář, kreativní ateliér, komfortní prostor pro hosty nebo relaxační útočiště po náročném dni.
Díky své kompaktní a promyšlené dispozici nabízí překvapivě praktické zázemí, zatímco jeho umístění v klidné zahradní části pozemku vytváří pocit soukromí a odpočinku.

Zároveň dobře doplňuje velkorysé venkovní prostory jako je pergola, bazén nebo relaxační zóna a rozšiřuje tak možnosti užívání zahrady. Tato samostatná jednotka může být také atraktivní hostitelskou či investiční příležitostí (např. Airbnb).

Virtuální prohlídka

Technické podklady

Ke stažení
Půdorys

Lokalita

Nejzajímavější místa v lokalitě

Ulice V Domkách v Dolních Jirčanech nabízí ideální rovnováhu mezi pohodlím příměstského života a blízkostí města. Jen pár minut od jižní hranice Prahy tu najdete klidné prostředí obklopené zelení, kde se dá žít naplno.

 

V okolí domu je dětská skupina, zubař, kosmetické a kadeřnické služby, menší obchod na návsi, restaurace, sportovní areál, ale i škola. Mateřská škola je v docházkové vzdálenosti, širší občanskou vybavenost pak nabízí blízká Jesenice.

 

Díky napojení na Pražský okruh a dálnici D1 je zajištěno pohodlné spojení s Prahou i okolními městy.

 

Okolí láká k procházkám, cyklistice i sportovním aktivitám. Zelené plochy, cesty mezi poli a lesními porosty vytvářejí příjemné prostředí nejen pro aktivní odpočinek, ale i klidné chvíle venku.

 

V Dolních Jirčanech, Jesenici i Vestci se po celý rok koná řada akcí pro děti a sousedských setkání, které dodávají místu přátelskou a živou atmosféru.

Cena nemovitosti

23 999 000 Kč

cena zahrnuje provizi, včetně právních a realitních služeb

Plánujete prodat svou nemovitost?

Rád vám představím možnosti prezentace Vaší nemovitosti.

Reference

S námi bezpečně k vytouženému cíli