Prodej 3+1 s balkónem, garáží a společnou uzavřenou zahradou – REZERVOVÁNO

exkluzivně u FKR

Jaký bude váš nový domov

Menší panelová budova, komorní prostředí
Budova po revitalizaci, funkční společné prostory (dílna, prádelna, mandl, sušárna).
Balkón do ulice a velká společná uzavřená zahrada
Metro C i bus 7 minut chůzí, parkování v garáži 19 m²
Původní stav umožnuje rekonstrukci dle vlastních požadavků
Příjemná orientace bytu vůči světovým stranám

Představení nemovitosti

Jsou místa a byty, která se na trhu objeví jen výjimečně.
Malý dům s několika málo byty, ukrytý mezi rodinnými domy, nabízí klid, soukromí a vlastní uzavřenou zahradu, kde má každý prostor nadechnout se. Byt v původním stavu dává svobodu vytvořit si domov přesně podle sebe – bez kompromisů a bez cizích rozhodnutí. K tomu garáž, sklep a zázemí domu, které dnes už působí téměř zapomenutě, ale o to více autenticky. A přesto jste díky metru C – Ládví během chvilky v centru města.

 


 

Technické podklady

Ke stažení
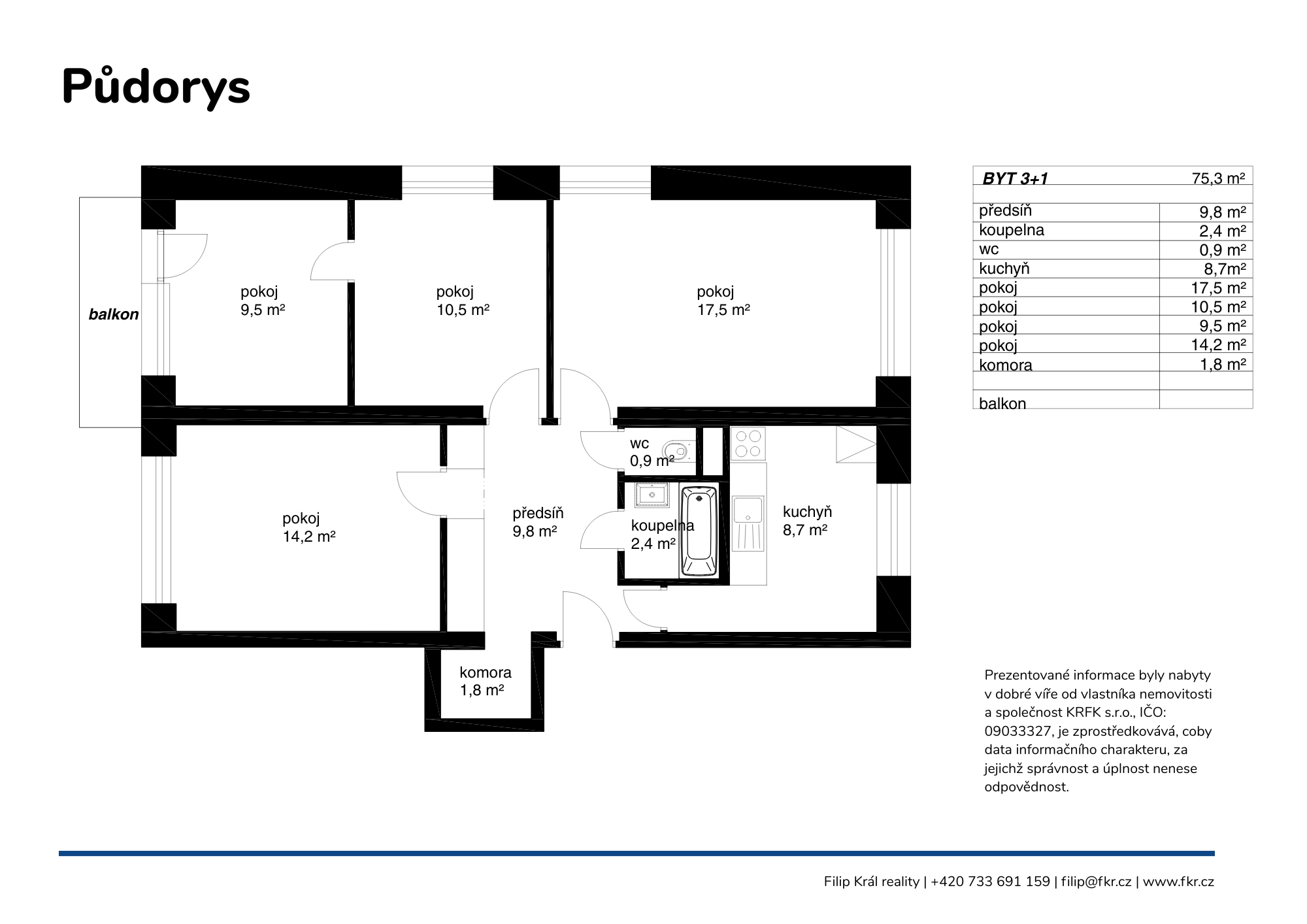
Půdorys

Lokalita

Nejzajímavější místa v lokalitě

Libeň nabízí klidné městské prostředí s výbornou dostupností do centra. V okolí domu najdete kompletní občanskou vybavenost – obchody, kavárny, restaurace, školy i zdravotní služby. Na stanici metra Ládví nebo Kobylisy dojdete během pár minut, takže cestování po Praze je maximálně pohodlné.

 

K odpočinku lákají Ďáblický háj, park Okrouhlík i přírodní památka Velká skála. Tato část Prahy tak spojuje každodenní komfort s blízkostí zeleně a vytváří příjemné místo pro spokojené bydlení.

Cena nemovitosti

10 897 000 Kč

cena zahrnuje provizi, včetně právních a realitních služeb

Plánujete prodat svou nemovitost?

Rád vám představím možnosti prezentace Vaší nemovitosti.

Reference

S námi bezpečně k vytouženému cíli