Play Video

Světlé 2kk v Kralupech nad Vltavou

exkluzivně u FKR

Jaký bude váš nový domov

Novostavba z roku 2019 s menším počtem jednotek (16 bytů).
Podlahové vytápění, velkoformátová okna, bezbariérový přístup.
Dvojice balkonů s příjemnou orientací a výhledem do zeleně.
Vlastní parkovací místo, sklep, výtah a kamerový systém.
Atraktivní investiční potenciál díky snadnému pronájmu a lokalitě s dalším rozvojem.
Výborná dopravní dostupnost – vlakem až na Masarykovo nádraží za půl hodiny.

Představení nemovitosti

Moderní novostavba v Kralupech nad Vltavou přináší příjemně řešenou dispozici, dostatek denního světla a praktické zázemí pro každodenní život. Světlý interiér s velkoformátovými okny působí vzdušně, podlahové vytápění dává volnost při zařizování a dvojice balkónů s výhledem do zeleně rozšiřuje obytný prostor o příjemné venkovní zázemí. Významným benefitem je také poloha v těsné blízkosti vlakového nádraží s přímým spojením do Prahy, a to bez negativního vlivu na akustický komfort.

 

Nemovitost představuje zajímavou příležitost jak pro vlastní bydlení, tak i z pohledu investice.

 


Virtuální prohlídka

Technické podklady

Ke stažení
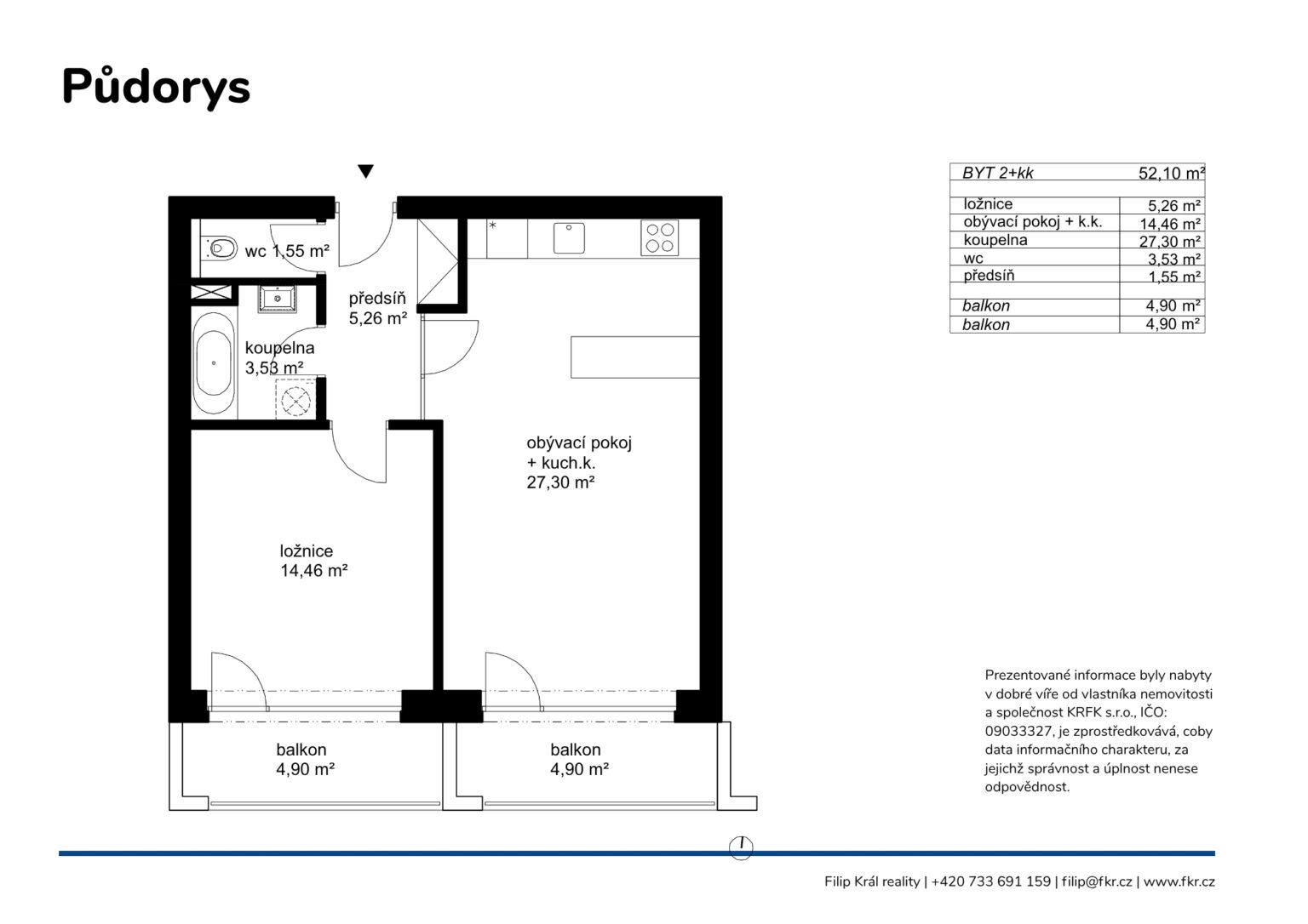
Půdorys

Lokalita

Nejzajímavější místa v lokalitě

Byt se nachází v klidné části Kralup nad Vltavou, v ulici Na Horkách. Okolí je ideální pro ty, kdo chtějí mít vše důležité po ruce, ale zároveň ocenit klid mimo rušné centrum. V pěší dostupnosti najdete školy, školky, obchody, sportoviště i zeleň pro volnočasové aktivity. Kralupy nabízí velmi dobré vlakové i silniční spojení do Prahy, což z lokality dělá praktickou volbu pro každodenní dojíždění i pohodové rodinné bydlení.

Cena nemovitosti

6 577 849 Kč (včetně sklepu a parkovacího stání)

cena zahrnuje provizi, včetně právních a realitních služeb

Plánujete prodat svou nemovitost?

Rád vám představím možnosti prezentace Vaší nemovitosti.

Reference

S námi bezpečně k vytouženému cíli