Play Video

Prodej řadového rodinného domu 5KK v obci Zásmuky

exkluzivně u FKR

Jaký bude váš nový domov

Praktická dispozice 5KK
Ideální tvar zahrady
Dvě parkovací místa + parkování pro hosty
PENB B
Komunitní projekt s fajn sousedskými vztahy
Lokalita s plnou občanskou vybaveností

Představení nemovitosti

Komorní projekt 12 domů v Zásmukách od studia ABM architekti přináší moderní rodinné bydlení s důrazem na jednoduchost a funkčnost. Klid menší obce, vlastní zahrada a promyšlená dispozice vytvářejí ideální zázemí pro ty, kteří chtějí zpomalit, ale zároveň neztratit kontakt s pracovním světem. Zásmuky nabízejí potřebnou občanskou vybavenost a zároveň rozumný dojezd do Prahy, což z nich činí vyvážené místo pro každodenní život.

 

Podívejte se na půdorys domu a detail projektu níže, možná právě zde najdete svůj nový domov.

 


 

Virtuální prohlídka

Technické podklady

Ke stažení
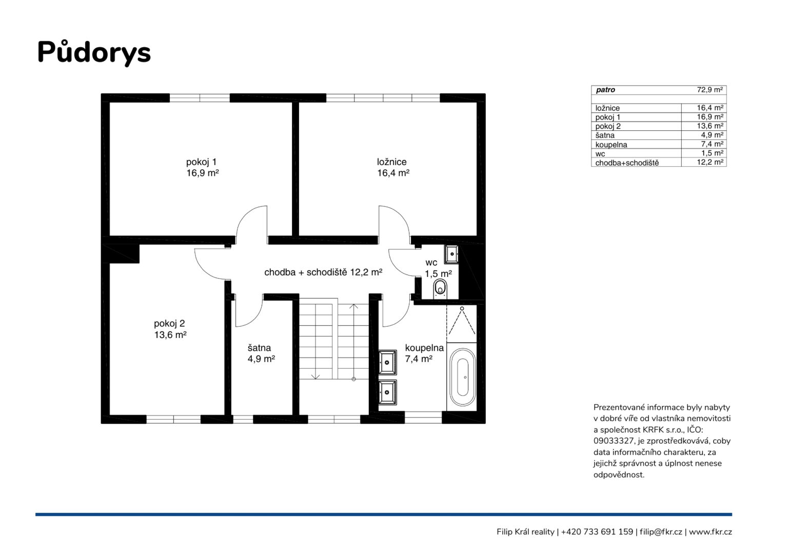
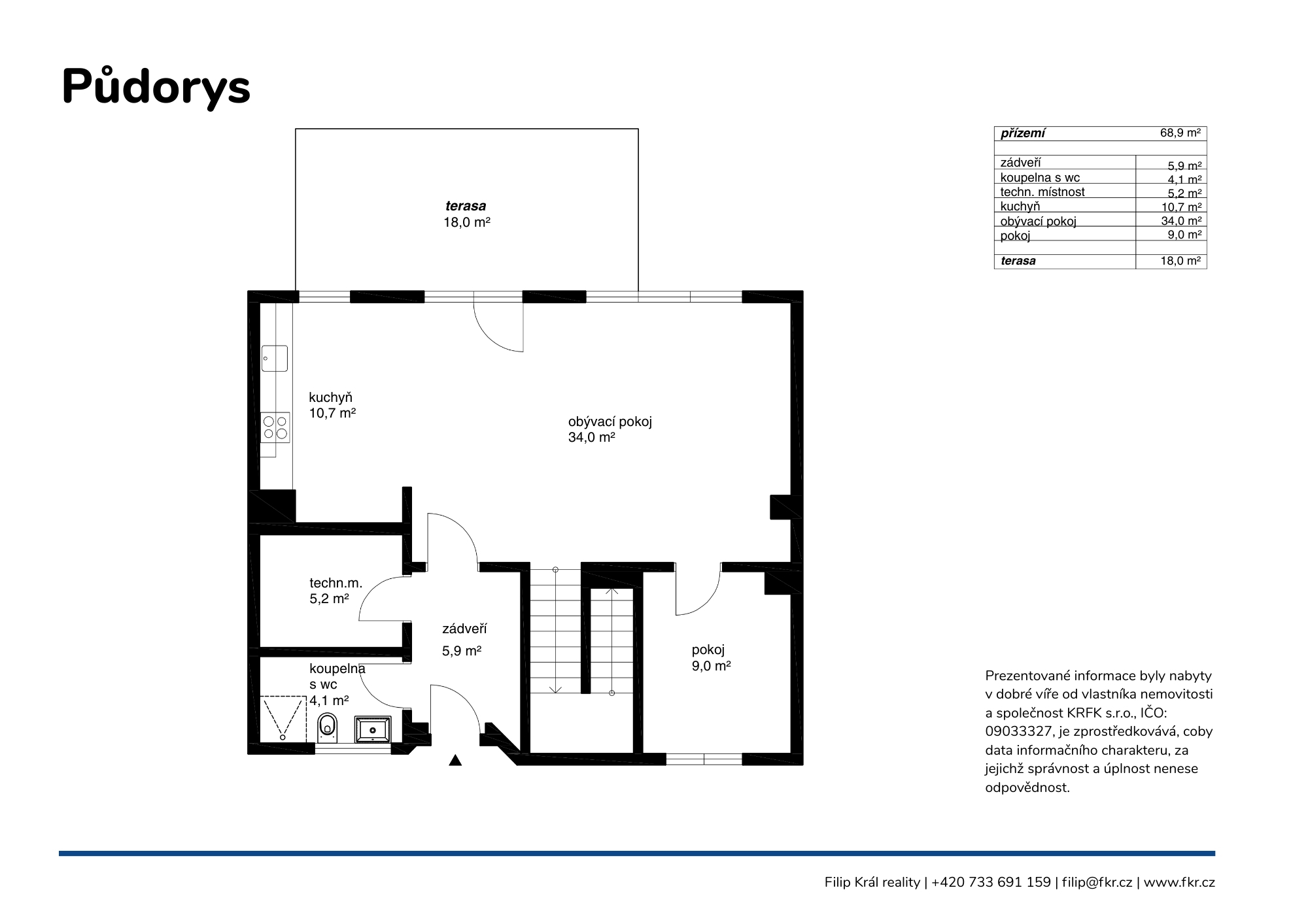
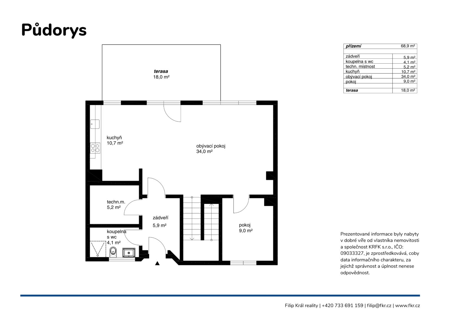
Půdorys

Lokalita

Nejzajímavější místa v lokalitě

Zásmuky jsou menší město s příjemnou atmosférou a kompletní občanskou vybaveností. Najdete zde mateřskou i základní školu, obchody, restaurace, lékaře i sportovní vyžití. Dominantou je zámek s parkem, který dodává místu osobitý charakter a nabízí prostor pro procházky i odpočinek.

 

Ulice Za Tofou se nachází v klidné části města s převážně rodinnou zástavbou. Lokalita působí upraveně a rezidenčně, zároveň však zůstává dobře dostupná. Kolín je vzdálený přibližně 20 minut jízdy, Praha zhruba 40 minut autem.

Ideální volba pro ty, kdo hledají klidnější bydlení mimo ruch velkoměsta, ale s dobrou dostupností do okolních měst.

Přesná adresa

Za Tofou 603, Zásmuky

Cena nemovitosti

10 499 000 Kč

cena zahrnuje provizi, včetně právních a realitních služeb

Plánujete prodat svou nemovitost?

Rád vám představím možnosti prezentace Vaší nemovitosti.

Reference

S námi bezpečně k vytouženému cíli